Eingabehilfen öffnen

Zum Hauptinhalt springen

Unsere Immobilien

Deutsche Baukultur auf hohem Niveau

Wir schaffen Orte, die Wert, Ruhe und Lebens­qualität vereinen – und sich vom ersten Moment an wie Zuhause anfühlen. Was unsere Immobilien besonders macht, ist die konsequente Auswahl hochwertiger Bau­elemente:

  • Fenster
  • Haustüren
  • Zimmertüren
  • Einbauschränke
  • Küchen
  • Badausstattung
  • Wasserfilter

Diese und weitere Kompo­nenten importieren wir direkt und exklusiv aus Deutsch­land – teilweise als General­vertretung – und verbauen sie in unseren Immo­bilien. Für Qualität, die man sieht, fühlt und lang­fristig schätzt.

Projekt

Punta del Este

Eckdaten


  • 4-8 Wohneinheiten
  • Grundstück ca. 150 m vom Meer entfernt
  • Chihuahua, ca. 15 Autominuten nach Punta del Este
  • Bereits im Bau befindlich / geplante Fertigstellung Oktober 2026

Baubeschreibung
  • Grundstücksanteil ca. 450–550 m²
  • Gebäude Bungalow: Grundflächenberechnung (Deutschland) ca. 136 m² / (Uruguay) ca. 176 m²
  • Gebäude zweigeschossig: Grundflächenberechnung (Deutschland) ca. 214 m² / (Uruguay) ca. 280 m²
  • Massivbauweise in Stahlbeton (keine Metallständerbauweise)
  • Fassade mit Massivholzverkleidung
  • Sichtbetondecken
  • Bodenbelag aus großformatigen Fliesen
  • Fensterelemente aus verstärkten Mehrkammer-Kunststoffprofilen mit Isolier-Doppelverglasung und Markenbeschlägen
  • Haus- und Nebeneingangstüren aus Aluminiumprofilen mit 3-fach-Verriegelung (Sicherheitsschloss mit erhöhtem Einbruchschutz)
  • Klimaanlage zum Kühlen und Heizen
  • Warmwasseraufbereitung über Elektroboiler
  • Holz-Kaminofen
  • Innen- und Außen-Deckenaufbauleuchten (LED)
  • Illuminierte Fassade (LED)
  • Illuminierter Garten und Einfahrt (LED)
  • Sicherheitstechnik mit Alarm- und Videosystem
  • Innentürelemente gefälzt mit umlaufenden Dichtungen
  • Einbauschränke in allen Schlafzimmern
  • Voll ausgestattete Küche und Bäder
  • Grundstück vollständig eingezäunt
  • Einfahrt gepflastert
  • Elektrisches Grundstückstor, per Funk bedienbar
  • Carport
  • Terrasse mit Pergola und BBQ-Bereich inkl. Theke und Spülbecken, Boden aus großformatigen Fliesen
  • Beheizter Pool mit Unterwasserbeleuchtung (LED) und Pooltechnik inkl. Filteranlage, Fliesenbelag
  • Garten mit Rasenfläche und Bepflanzung

uruguayplus landschaft Berge

Zweigeschossig


Erdgeschoss:

  • Wohn-Essbereich mit Küche
  • Schlafzimmer
  • Ankleidezimmer
  • Badezimmer
  • Gäste WC
  • Treppenhaus
  • Hauswirtschaftsraum

Obergeschoss:

  • 2 x Schlafzimmer
  • 2 x Bad
  • 2 x Dachterrasse mit Boden großformatiger Fliesenbelag und Ganzglasgeländer

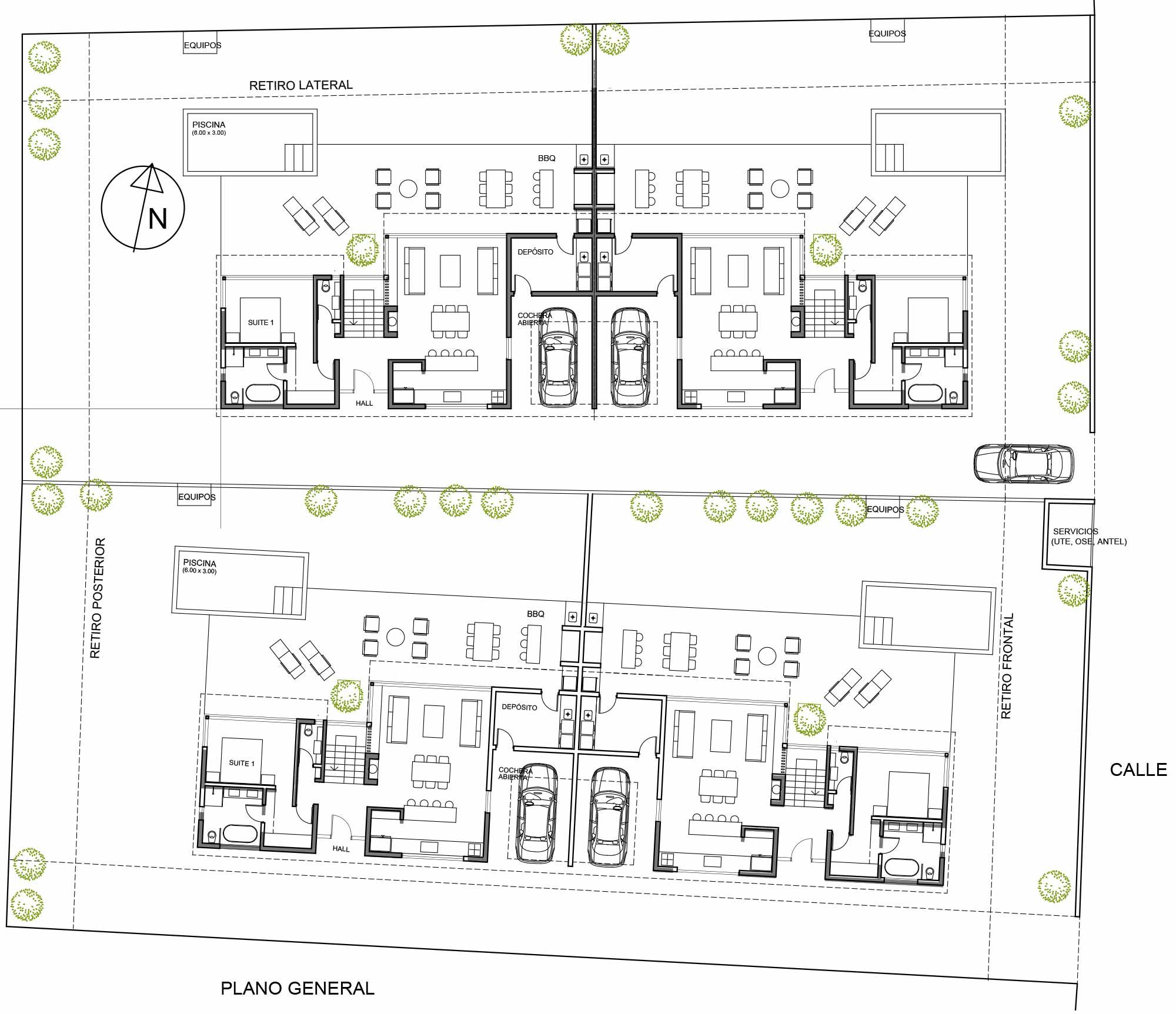
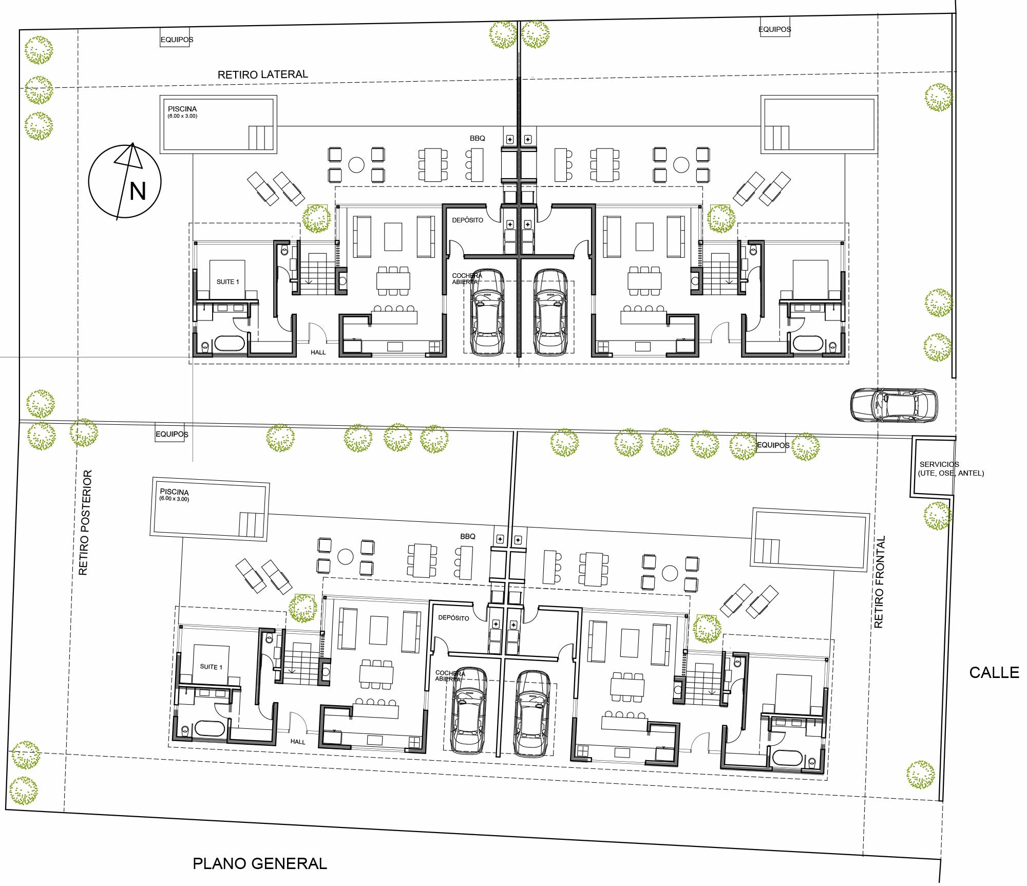
Grundrisse:


Preis 510.000 €

(ca. 590.000 US$)
uruguayplus landschaft Berge

Bungalow


  • Wohn-Essbereich mit Küche
  • Schlafzimmer
  • Ankleidezimmer
  • Badezimmer
  • Gäste WC
  • Arbeitszimmer
  • Hauswirtschaftsraum

Preis 410.000 €

(ca. 475.000 US$)

Grundrisse Zweigeschossig

Erdgeschoss
Obergeschoss
uruguay-plus chihuahua haus esszimmer
uruguayplus landschaft Berge

Individuelle Baumaßnahmen

Wir begleiten und unter­stützen Sie bei der Grund­stücks­auswahl. Planen und bauen Ihre ganz indivi­duelle Immobilie. Von der ersten Idee bis zum fertigen Haus Schritt für Schritt trans­parent und persönlich.